The Tokyo housing market is red hot! In fact, it hasn’t been this hot since the bubble burst in the '90s.
A lot of you have been asking how to get in on the Tokyo property market, so I decided to do some personal research. So today, my friend and I looked at three houses in Japan, all under $200k, to see just how much value you can get.
How we found a foreign friendly real estate agent
As you might have heard, a lot of real-estate agents and properties in Japan don’t work with foreigners. However, it is easy to find foreign friendly agents if you know where to look.
The best way to find real estate in Tokyo is to use HOMES’ foreign-friendly agent filter, especially if you know some Japanese. These agents often offer better prices and unique listings. Many can handle some English, especially via email. Here's a pre-filtered link: https://actionforall.homes.co.jp/friendlydoor/global/tokyo
The properties we saw:
We went with the incredibly friendly Mai Wakiyama from the Quality of Life Real Estate agent that drove us around in a very nice Mazda SUV



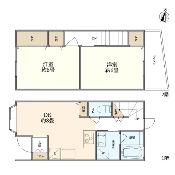
The first house we saw, listed for 28.8 million yen (approx. $184k), is located in Nakano ward, an 8-minute walk from Nakano Shimbashi station and a 10-minute bike ride to Shinjuku station, featuring a 2DK layout with a building area of 49.64m² and a land area of 29.23m², built in February 1970.








A really nice place in a very cute neighborhood full of families and cats. The main reason this place was at a discount was that if we decided to tear it down and rebuild it, we wouldn’t be allowed to build an equally large house on the yard. In fact, it would have to be over 1 meter further away from the street.
The second house we saw was both the most interesting and the eeriest. It is located Nakano ward, around 20 minutes away from Shin Koenji station, or a 25 minute bike ride to Shinjuku station.
The house is built in May 1972, is listed for 26.8 million yen (approx. $171k), featuring a 4DK layout, a land area of 99m², and a building area of 88.62m².






An incredibly large house for the price, but with some serious need for renovation. However, the flooring was mesmerizing and the house felt like a walkthrough history museum of a bygone Japan…
A big downside of this house, except its need for renovations, was that as it is next to a road smaller than 2m in width, you are not allowed to tear it down, but only renovate it (however, our agent told us that there is a loophole where you can basically build a new house on these lots, as long as you build it around the original pillars of the old house - but don’t quote me on this!).
The third house we saw was downright creepy. It is listed for 27 million yen (approx. $172k), featuring a 3LDK layout, a land area of 46.15m², and a building area of 67.76m².
The house is built in July 1981, and is a 15-minute walk from Koenji Station (super hip area right now), or a 28 minute bike ride to Shinjuku station.






On paper, this house might look like a steal, but it is anything but… As it is stuck with another house, you are not allowed to tear it down. Some photos might look nice, but the whole house felt haunted, especially the bottom floor.. Overall, I think this house is a stark reminder to always previewing a house in person before purchasing it!
After a day of house hunting, we said goodbye to our lovely real estate agent and had some amazing Japanese curry at Blue Plate in Koenji


So, that was our day getting more familiar with house hunting in Tokyo. If you have any questions, feel free to drop a comment under this article!
Interesting and informative information; thank you for doing the research and publishing the results!